秦汉里保障性租赁住房项目设计方案批前公示

公示时间:2022年6月2日

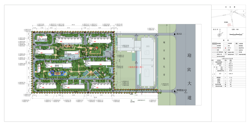
项目名称:秦汉里保障性租赁住房项目

建设单位:西安市房屋建设开发管理有限责任公司

项目概况:

项目位于西咸新区秦汉新城周陵片区北塬一路以南、迎宾大道以西。本项目规划净用地面积32977㎡,总建筑面积78536.27㎡,主要建设保障性租赁住房8栋楼及相关配套设施用房等。详见总平面示意图。

公示期:7个工作日

批前公示并非最终审批结果。在公示期内,利害关系人若有意见,可来电向西咸新区自然资源和规划局(秦汉)工作部反映。(联系电话:029-33136581)

附件:1、总平面示意图


2、建筑方案效果图




西咸新区自然资源和规划局(秦汉)工作部

2022年6月2日